トップ
加盟店紹介
不動産ネットワーク奈良とは
販売物件検索
賃貸物件検索
賃貸物件
TOP PAGE
賃貸物件
橿原市中曽司町(戸建A)3LDK 新築
物件写真
物件詳細情報
物件種別
アパート・マンション・戸建て
物件名
橿原市中曽司町(戸建A)3LDK 新築
物件所在地
〒634-0845 奈良県 橿原市 中曽司町
路線駅
近鉄 大阪線 真菅 駅
徒歩8分
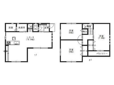
間取り
3LDK
専有面積
86.94㎡
駐車場有無
有
駐車場場所
敷地内
台数
1台
入居
即時可
家賃
120,000円
礼金
200,000円
保証金
200,000円
築年数(年)
1年以内(新築)
築年数(月)
2025/06
取引態様
仲介
加入保険
火災保険
契約形態
更新
階建
2
建物構造
木造
設備(ガス・キッチン)
IHコンロ コンロ2口以上 システムキッチン カウンターキッチン
設備(排水)
下水道
設備(バス・トイレ)
バス・トイレ別 洗髪洗面化粧台 温水洗浄便座 給湯 シャワー 追焚機能
設備(冷暖房)
エアコン
設備(収納)
床下収納 下駄箱
設備(セキュリティ)
モニター付きインターホン
設備(その他)
オール電化 室内洗濯機置場
ペット
不可
こだわり条件(構造)
フローリング
こだわり条件(条件)
保証人不要
賃貸形式
長期(一般的な賃貸借契約)
保証人代行
可
掲載期限日
2026/01/25
備考
・賃貸保証契約要
・全室照明器具付
・3年契約(3年以内の解約の場合残りの家賃を支払い解約とする)
お問い合わせ先:共栄土地建物 株式会社
所在地:奈良県橿原市石原田町222番地の5
電話:0744-22-5150
FAX:0744-25-5051
E-mail:office@kyoeitochi.jp
(迷惑メール防止の為@を全角にしています。)
物件地図
CONTACT
お問い合わせ
奈良の物件のことならお任せ下さい!
奈良県下の地元に密着した優良業者の強力ネットワークで、お客様のニーズに合ったお家を確実にお探しします。
メニュー
MENU
トップ
加盟店紹介
不動産ネットワーク奈良とは
販売物件検索
賃貸物件検索